Davies Lane, Leytonstone, London, E11
Sold - £800,0003 Bedroom Terraced House Shortlist
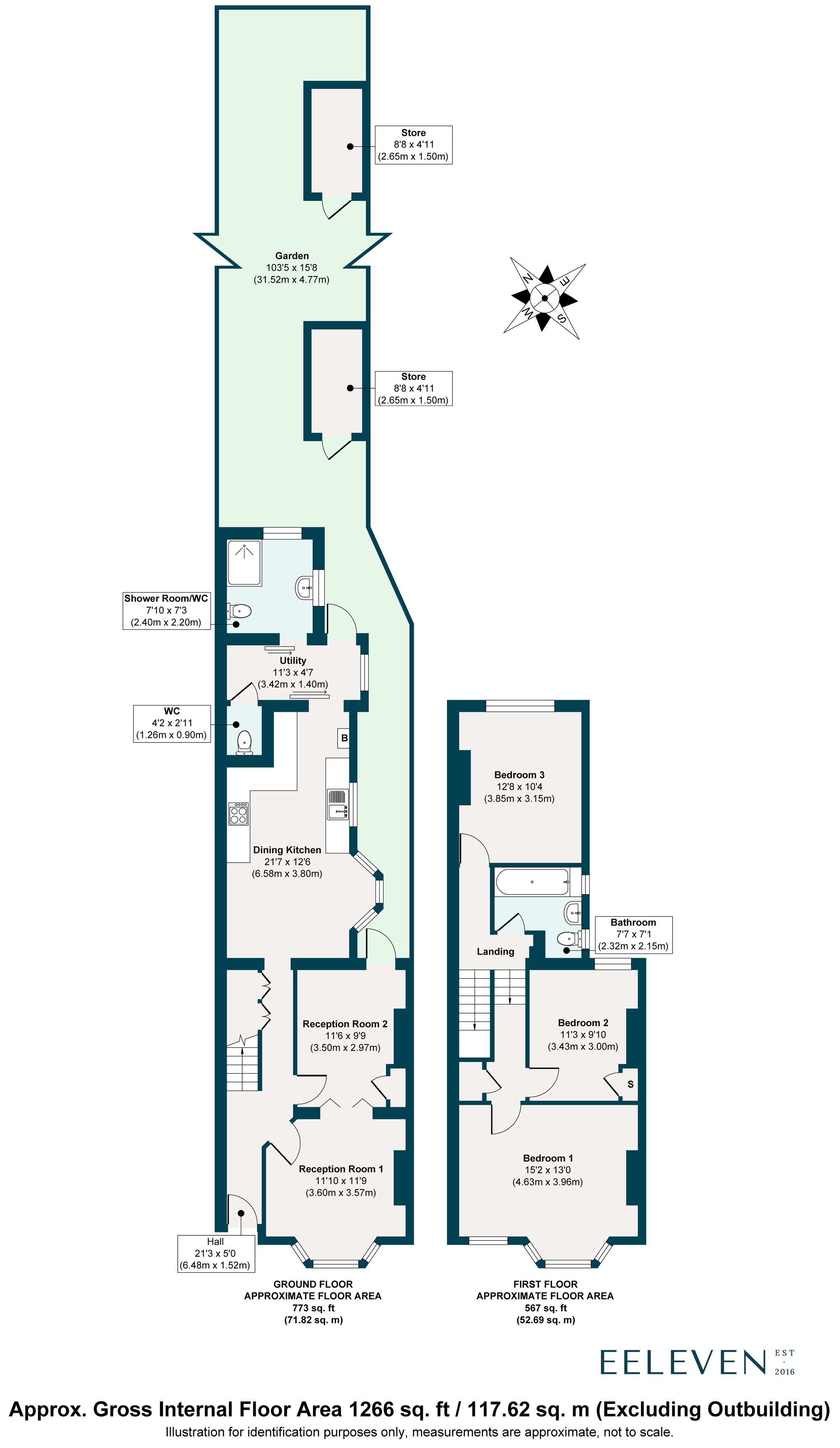
Key Features
- Spacious Victorian house
- Three double bedrooms
- Two reception rooms
- Two bathrooms (one shower room) & a WC
- Large & bright dining kitchen
- Loft & rear extension potential
- 103-foot rear garden
- Two brick-build garden stores
- Near excellent schools & Tube/Overground
Loved by the same family for over 50 years, this much-cherished three-bedroom Victorian home retains wonderful period details and a practical, flowing layout that meets a 103-foot rear garden. Inside, large bay windows flood the generous living spaces in natural light, including the double reception room and dining kitchen. Decorated in neutral tones, the home is immediately liveable while offering scope to modernise and add your own stamp.
The house is nestled in a peaceful street just moments from the sweeping greenery of Wanstead Flats and the shops, eateries and transport links along High Road. A red-brick exterior adorned with a full-height bay window greets you upon arrival, with a red-brick wall screening a useful front patio.
STEP INSIDE – PERIOD CHARM MEETS MODERN POTENTIAL
A glazed front door invites you into a spacious, spot-lit hallway, where cheerful yellow walls, framed by white dado and picture rails, rise to an impressively high ceiling with lovely modillion cornicing and ornate corbels.
There’s a large double storage cupboard beneath the carpeted staircase, with its wooden bannister, while a stripped wood door brings you into the front reception room. The practical wood-effect flooring continues in this light-filled living area, which is brightened by a canted bay window and neutral two-tone walls trimmed with dado rails and elegant coving.
A feature mantelpiece and a ceiling rose with a pendant light complete the picture, while the décor continues through the folding doors in the rear reception for a cohesive feel. Offering in-built storage and easy garden access through a glazed door with a transom, this space could serve numerous purposes, from a formal dining area to a snug, kids’ playroom, or home office.
Return to the hallway, following the practical flooring into the kitchen. Backdropped by neutral coved walls, it’s illuminated by a mixture of ceiling spots, a broad window above the sink, and a wide bay window that creates the perfect breakfast nook.
Benefitting from ample wooden cabinetry and patterned floor tiles, it’s an expansive area for cooking and entertaining, with plenty of potential to upgrade from a classic country vibe to a contemporary one. It comes with an integrated cooker with a gas hob, and there’s space for a fridge-freezer. Beyond lies a rear hallway leading to the garden, a utility area, a separate downstairs toilet and a dual-aspect bathroom with a shower and WC.
Upstairs, the carpeted, split-level landing connects three double bedrooms and a three-piece, spot-lit family bathroom featuring Mediterranean-style mosaic tiling and two frosted windows. The primary bedroom fills the front of the house and combines coved white walls with a tall window and a canted bay for a light, fresh feel. You’ll also find a central pendant, a wooden mantelpiece, and lots of storage potential in the alcoves.
The décor is similar in the middle bedroom – a good-sized double with a built-in cupboard, spotlights, a central pendant, and a large window. At the back of the house, bedroom three is framed by coved walls and enjoys a pleasant view over the garden.
OUTDOORS – SPACE TO EXTEND
The spacious interior opens to an impressively long garden, where a central walkway connects the side return to the paved rear terrace. Planted with a variety of shrubs, trees, and flowers, the garden extends over 100 feet, so it’s versatile enough to create separate spaces for al fresco entertaining and family life, even if you choose to extend (subject to planning and consents). Two brick outbuildings also provide extra storage for garden supplies or tools.
A NOTE FROM THE OWNERS
‘After more than fifty years, our home is ready to be passed on to the next family. Maintained with pride and care over the years, it's a welcoming and comfortable house that has served our family well.
‘We have always loved the location — an outstanding school is just steps away, and the open spaces of Wanstead Flats and Wanstead Park are on the doorstep. The house falls within the Ferndale Area Residents' Association (FARA) which offers a friendly and engaged community. Directly across the road, the Pastures and Good Shepherd Studios have a rich programme of social, artistic and sporting activities. Shops, cafés and transport links are all within easy walking distance. The best of both worlds — a peaceful, leafy environment, a real sense of community and all the conveniences of an urban setting.
‘We've always found it something of a hidden secret — a place that feels like country life in the heart of London. We hope the next family will love it as much as we have.’
GETTING AROUND
Leytonstone High Road (Suffragette line – Gospel Oak to Barking Riverside) is just a seven-minute walk. Meanwhile, Central line services run from Leytonstone Tube (10 minutes). The Elizabeth line from Forest Gate, which is reachable on foot in 30 minutes, will take you to Stratford in four minutes, Bond Street in 21 minutes, and London Paddington in 25 minutes. Additionally, numerous buses stop along High Road.
IN THE NEIGHBOURHOOD
Set in Leytonstone and within striking distance of Forest Gate, Davies Lane offers the best of both neighbourhoods. The house is perfectly located for a ramble around Wanstead Flats (at the end of the road), and Jubilee Pond – wonderful, wild outdoor spaces, whatever the season.
Wanstead Flats is a popular spot for picnics, local games, and recreational sports, especially on weekends, and hosts a park run every Saturday. With the Olympic Park, canals, and Hackney Marshes a short distance away, there’s plenty more to explore on your doorstep.
In Leytonstone, local sellers particularly recommend Back to Ours for coffee, which is part of the Good Shepherd Studios – a community cultural space with creative arts, Pilates, children’s events and a community garden. They also recommend heading to the North Star for a drink, Homies on Donkeys, Leytonstone Tavern, Panda Dim Sum, Filly Brook, Bocca Bocca, Yard Sale Pizza, and Mum Likes Thai Food, as well as Studio M Pilates, a stone’s throw away in the arches of the Overground station. Other sellers mention The Pastures Youth Centre for sports.
A short walk across Wanstead Flats, Forest Gate also has a thriving food and drink scene, including excellent food and wine at Joyau, beer at Pretty Decent Beer Co, and coffee at Tamping Grounds. The Holly Tree is a lively and friendly local pub, as is The Rookwood Village pub with its stylish interior, deck, and electronic darts. Additionally, The Can Club is a lovely café for children and parents.
SCHOOLS
Local schools rated ‘Outstanding’ by Ofsted include Davies Lane Primary (on the road – a two-minute walk) and Acacia Nursery School (ten minutes). George Tomlinson Primary is also rated ‘Good’ (seven minutes). Connaught School for Girls and Buxton Secondary are rated ‘Good’ by Ofsted, and both are around 15 minutes on foot.
Floorplan

Energy Performance



















