Francis Road, Leyton, London, E10
ShortlistKey Features
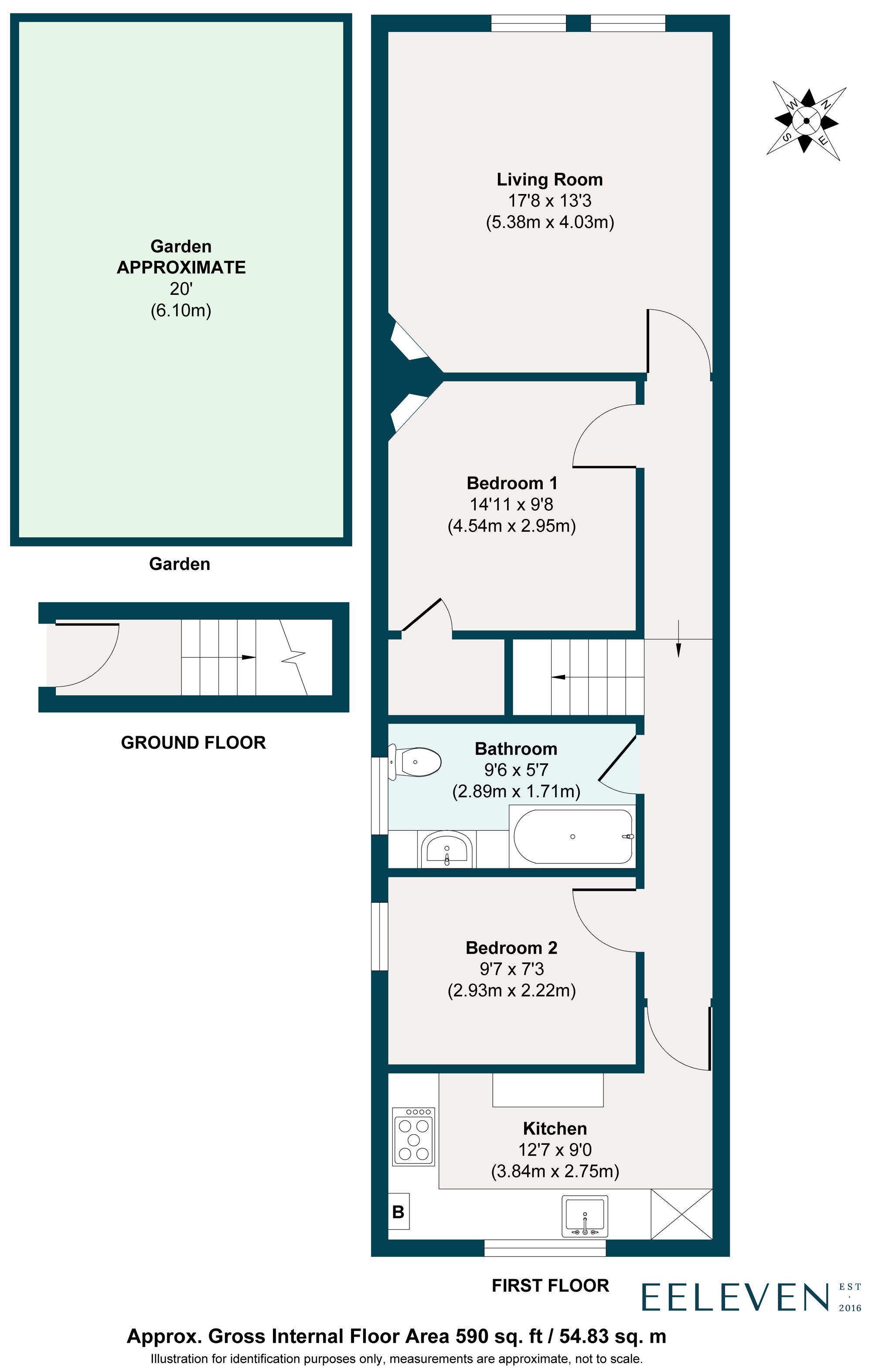
- Two-bedroom first-floor maisonette
- 162-year lease
- On Francis Road
- Fully renovated throughout
- Modern bathroom and kitchen
- Original features & fireplaces
- Approx. 20-foot private garden
- Walkable to Tube & Overground
Set at one end of the ever-popular Francis Road, this bright and airy Victorian maisonette has been lovingly refurbished to a high standard to create a stylish, warm and friendly-feeling home.
Over the last four years, the owners have renovated the property from top to bottom, undertaking a complete rewire, replacing the windows and front door, fitting a modern bathroom and kitchen, installing column radiators and a new boiler, and landscaping the garden.
The maisonette occupies the first floor of a semi-detached Victorian house overlooking the green expanse of Leyton County Cricket Ground, with a traditional red brick frontage and white-painted stone sills to the new double-glazed uPVC windows. The excellent location is just a stone’s throw from well-connected bus, rail and road links, several parks and great schools.
STEP INSIDE
A cast-iron gate opens to a monochrome chequered tiled path leading to a midnight-blue, part-glazed timber front door with brushed chrome furniture.
Leave your coat and shoes in a handy vestibule with grey geometric floor tiles underfoot before ascending the refurbished timber stairs to the first floor, where beautiful herringbone parquet Amtico flooring begins. The walls throughout have been painted white, and the hallway has been stylishly colour-blocked with Farrow & Ball’s ‘Inchyra Blue’ below the dado rail.
The warm, wood-toned flooring flows into the living room. Wonderfully bright and spacious, with a high ceiling, it looks out to the cricket ground and pavilion through a pair of large casement windows with roller blinds and triple-column radiators beneath. The current owners tell us the views are particularly lovely at night when the trees twinkle with fairy lights.
In addition, a restored original cast-iron fireplace with a white-painted surround and blue-patterned tiled hearth creates a focal point, and there’s plenty of room for a dining table.
The primary double bedroom is adjacent and has an equally restful feel, with a soft grey carpet and a large side-facing window fitted with a bespoke blue Roman blind. There is another column-style radiator here, alongside a second, carefully restored fireplace to match the living room. Besides space for freestanding wardrobes, you’ll also find a roomy built-in cupboard, which would work well as a walk-in dressing or storage area.
Returning to the hallway, an overhead hatch opens to a pull-down loft ladder and a fully insulated and boarded loft space included in the lease.
Continue to the recently fitted bathroom, where charcoal grey floor tiles and dove grey paintwork pair with white slim glazed metro wall tiles for a calm, contemporary feel. Lit by a tall frosted window, it has a bath with a frameless glass screen and a Grohe rainfall shower with a separate handheld attachment, a close-coupled loo, a chrome heated towel rail radiator, and a wide white wall-hung vanity basin with a Grohe chrome mixer tap.
The second double bedroom lies beyond and shares a similar décor scheme to the primary, with white walls, a soft grey carpet, a column-style radiator, and a large casement window with a bespoke neutral Roman blind.
You’ll find the kitchen (fitted in 2020) at the end of the hallway. Complemented by a marble-look quartz worktop and glossy white metro-tiled splashback, the navy blue and ivory shaker-style Howdens cabinetry with brass handles provides ample storage. A Belfast sink sits beneath the tall casement window, while integrated appliances include a Lamona fridge-freezer, washer-drier, dishwasher, five-ring gas hob with overhead extractor, and oven. The grey porcelain floor tiles are warmed by underfloor heating, and the Viessmann boiler is also housed here.
OUTDOORS
The garden is accessed through an anthracite-grey gate at the front of the property. Enclosed by contemporary timber slatted fencing and a recently built attractive London Stock brick wall, it feels nicely private. Its south-easterly aspect also ensures it enjoys the sun from mid-morning until sunset. A pebbled area with stepping-stone pavers and pots planted with bamboo and scented jasmine leads to a decked patio – an ideal spot for coffee, barbecues or evening drinks.
A NOTE FROM THE OWNERS
‘This has been the perfect first home for us, and we feel so lucky to have lived on Francis Road in the heart of Leyton village with its lovely community. We have really enjoyed being able to fully refurbish the flat and to see its full potential. It’s spacious and airy, and the original features and private garden are a real bonus. We’ve particularly enjoyed evenings in the living room watching the sunset and amazing colourful skies over the cricket pitch. We hope the next owners love it as much as we have.’
GETTING AROUND
The Overground at Leyton Midland Road is just a six-minute stroll and has a swift change to the Victoria line at Blackhorse Road, while the Tube at Leytonstone is just over 20 minutes' walk, making light work of getting to the City, West End, Canary Wharf and South Bank. Just two stops away, Stratford hosts the beautiful Queen Elizabeth Park and serious retail therapy at Westfield.
IN THE NEIGHBOURHOOD
At one end of the popular Francis Road, the property is situated in one of Leyton’s most constantly in-demand locations, thanks to its urban village of independent local businesses.
Firm favourites include Yardarm wine bar, Phlox bookstore, Edie Rose florist, Marmelo Kitchen, and Pause yoga studio. The current owners particularly recommend Deeney’s for tasty toasties, Masala India for curry, and Unity Café for lunch in the sunshine. They also recommend community events like the local jumble trail and Francis Road summer street party.
Nearby are the Heathcote & Star pub with its popular beer garden, Filly Brook craft beer hall, Gravity Well Taproom brewery and bar, and Coach & Horses, which serves a fantastic Sunday roast. Opposite the flat is Leyton County Cricket Ground with its wonderful Edwardian pavilion, while Coronation Gardens is around a 12-minute walk. The location is perfectly placed to enjoy the beautiful green spaces of Olympic Park, Wanstead Flats, and Hollow Ponds – all within 30 minutes’ walk (or a short cycle ride).
SCHOOLS
Popular and well-performing schools with an Ofsted rating of Good or above include Dawlish Primary (three minutes’ walk), Newport Primary (eight minutes’ walk), George Mitchell Primary and Secondary (nine and 10 minutes' walk, respectively), and Norlington Secondary & 6th Form for Boys (10 minutes’ walk).
Brochure
Floorplan






















