Nicholas Court, Wallwood Road, Leytonstone, London, E11
Sold - £425,0002 Bedroom Flat Shortlist
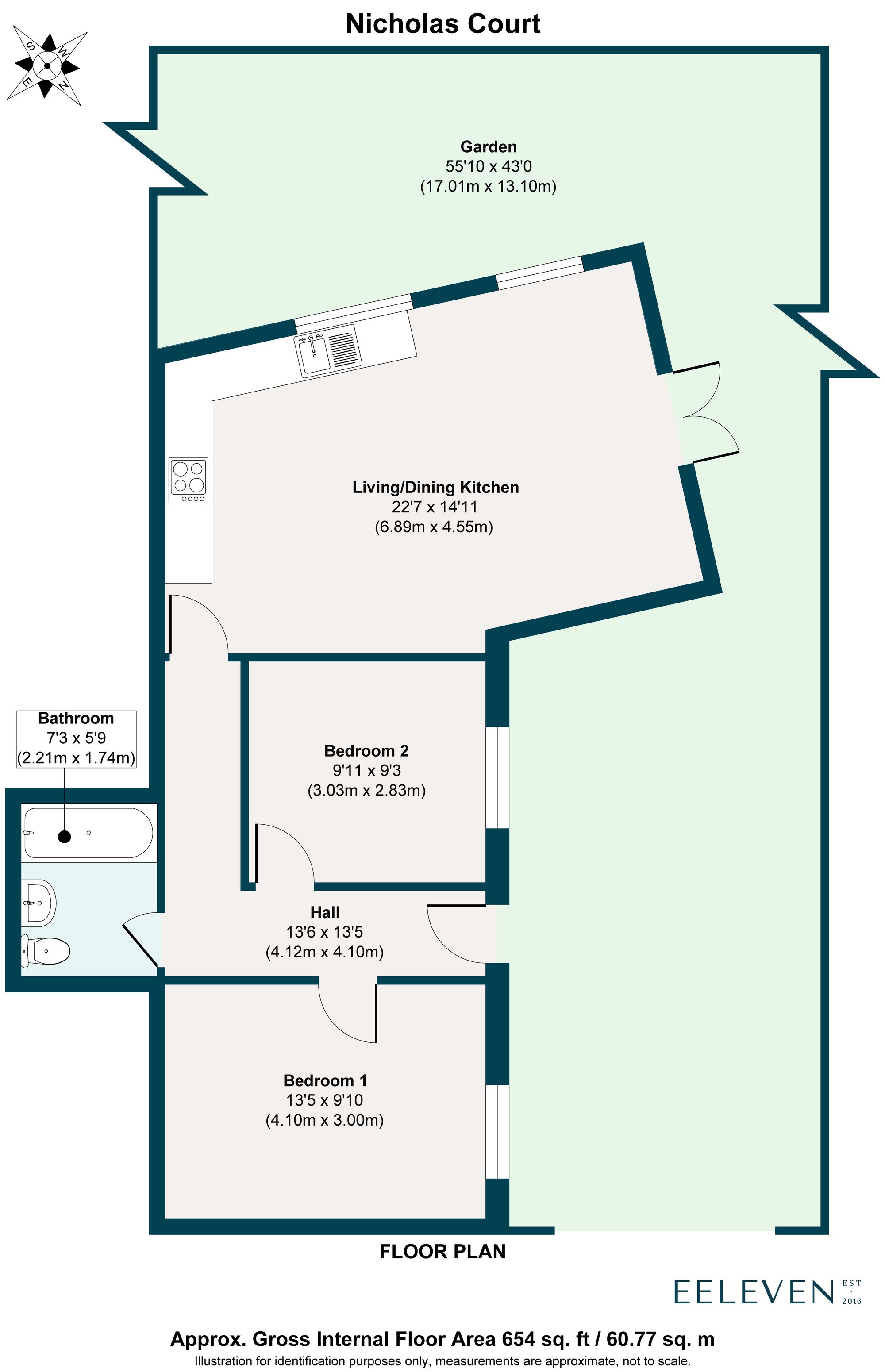
Key Features
- Spacious ground-floor flat
- Open-plan dining/living kitchen
- Stylish recently renovated bathroom
- Private southwest-facing garden
- 171 years remaining on lease
- Short walk to Overground & Tube
- Near Francis Road
Tucked in a cluster of quiet residential streets between the area’s thriving town centres, packed with pubs, shops, and restaurants, and the artisanal scene on Francis Road, this bright two-bedroom flat forms part of a small brick building on leafy Wallwood Road. Within 10 minutes, you’ll find excellent commuter links at Leytonstone Underground and the Overground at Leyton Midland Road, with Hollow Ponds and Leyton Flats offering an escape from city life.
STEP INSIDE
Arriving at the property, you’re met by attractive dark-wood fencing and a tree-planted border screening the private front garden. Double gates open to a gravelled drive, which could be used for off-street parking if you choose to contact the council about dropping the curb. There is also a permit parking bay for use of all residents at front of the building.
Follow the paved pathway to a blue-panelled front door with an intercom and security light. Beyond, a soft mint green accent wall highlights the tall white walls, coving, architraves and skirting boards in the hallway, which is brightened by a stylish pendant light fitting. The cosy cream carpet underfoot runs into both double bedrooms, which overlook the front through large casement windows with radiators beneath to capture the evening light, controlled by fitted roller blinds.
The primary bedroom is on your left. It’s a great-sized double with coved walls painted a calming blue for a restful feel. There’s plenty of room for freestanding furniture, while chunky wooden shelves create storage in the alcove in the corner.
Across the hall, the second double bedroom pairs muted wall tones with the coved ceiling. Currently set up as a cheerful child’s bedroom, it features a high shelf with useful hooks beneath and space for a large wardrobe.
Head along the hallway to discover a recently refurbished bathroom, where black-and-white porcelain triangular floor tiles complement glossy white wall tiles with contrasting grout and dark grey paintwork. High-end white sanitaryware with chrome fittings has been chosen, along with practical storage in the form of a wall-mounted vanity unit. There’s also a shower fitting, a folding glass screen above the bath, a bright ceiling lamp, and a sleek black, flat-panel towel rail.
Continue into the heart of the home – a spacious dual-aspect kitchen, dining and living area with French doors and two big windows facing the southwest garden to draw in lots of natural light. Grey coved walls with a stylish high bookshelf above the doorway meet wooden laminate flooring to blend with a grey tiled splashback and matt white cabinetry arranged around a central dining area. Appliances include a Firenzi oven with a gas hob and extractor fan, a Smeg fridge-freezer, an LG washing machine, and a Kenwood dishwasher. The boiler is housed here, too.
Wooden Venetian blinds also complement the flooring while allowing you to adjust the lighting levels to suit your mood. Draw the curtains back in the living area (big enough for two sofas) to reveal the French doors opening onto the patio and the garden beyond.
OUTSIDE
Screened from the street by nine perimeter trees, shrubs, and smart picket fencing, the large southwest-facing garden enjoys a sunny terrace by the French doors, perfect for morning coffee, and a handy bike shed by the patio on the gravelled drive. The wrap-around lawn tracks the sun throughout the day and provides ample opportunity for gardening or growing herbs and vegetables in the wooden trellised planters.
A NOTE FROM THE OWNERS
‘We love the community and local area, and over the last six years, we have befriended many of the neighbours. It is a very welcoming place in a great location that is easy for commuting into central London, especially now it is easy to access the Elizabeth Line from Stratford. We love how easily we have been able to adapt our home as we’ve gone from a couple to a family of four – it’s a spacious flat. The open-plan living area has been perfect for entertaining friends, cooking big family meals and relaxing together. The large private garden is one of our favourite aspects of the flat because we both enjoy gardening and having a space outside in the summer months.’
IN THE NEIGHBOURHOOD
Just a short walk from two great neighbourhood watering holes – the Heathcote & Star pub and Filly Brook craft beer hall – Wallwood Road’s location is equally suited for a wander into the bustle of High Road Leytonstone or down to Leyton Village on Francis Road.
Between the two, you'll find plenty of local favourites, including authentic Thai cooking at The North Star, locally brewed coffee at Perky Blenders, remarkable wines at Yardarm, and excellent pastries at Wild Goose Bakery. Or try Michael's fish bar just down the road, Masala India, Gravity Well Taproom for craft beer and wine at Arch Deli, brunch at Out of the Woods, and the tropical fruit and veg store on Hainault Road.
For those who love the great outdoors, Wanstead Flats and Hollow Pond are close by. A short walk, Tube, drive, or cycle will lead you to Epping Forest, which offers 2,400 hectares of green open space and woodland. In the other direction, the Olympic Park, Hackney Marshes, Lea Valley horse riding and ice skating are all within easy reach via quiet cycle routes.
In addition, our local sellers have recommended Lloyd Park, which has a great farmers market at the weekend, Stone Mini Market for pop-up supper clubs or community events at Good Shepherd Studios, Pause yoga studio, and Burnt Smokehouse.
SCHOOLS
There are a range of schools nearby, including Gwyn Jones Primary, Leyton Sixth Form College, and Leytonstone School, all rated ‘Good’ by Ofsted. A handful of ‘Good’-rated pre-schools are also within a short walk.
Floorplan
























